2025西安商铺华清园文津观澜丨容积率丨价值分析丨户型展示丨售楼处电话
您当前使用的浏览器版本过低,可能存在安全风险,建议升级浏览器,或者用以下浏览器浏览
项目即将推售三期地块,规划建设净用地面积64亩,容积率2.68,绿化率为30%。三期地块南侧共分别设置2个人行及车行出入口,整个小区采用人车分流地下停车方式,共1265个车位。
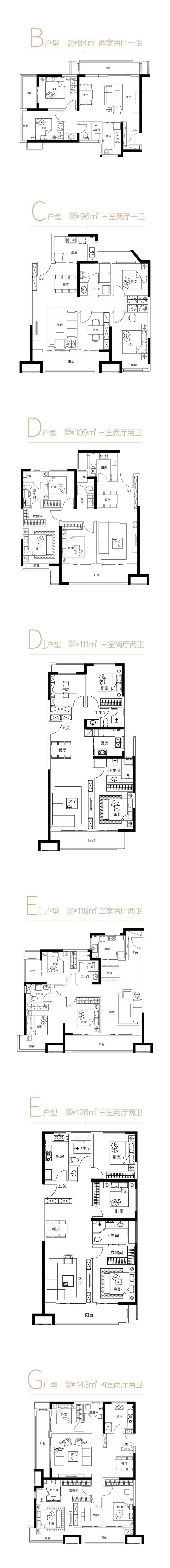
三期参考二期产品和规划,进行了再次升级。整个三期共计规划12栋楼,共计918户,其中8栋为12层小高层产品,4栋为9层河景洋房产品,三期整体的楼层均不超过12层,结合项目临河属性,居住舒适度非常高。
项目建筑整体规划以科技感和学院风传承为本案设计主旨,立面设计色彩上墙面以浅色系仿石涂料为主,适当以咖色等较为跳跃的色彩营造整体活跃的风格特点,满足了不同业主的审美情趣,提升建筑品质。
秦汉新城率先实施“名校+”计划,与众多品牌教育集团合作,打造菁英教育体系,助力孩子精彩未来。
【幼教】:自配品质幼儿园,不出社区,即享“目送式”优教,降低家长接送时间成本。
【小学】:距后宰门小学秦汉分校约300米 ,约30个班,1350个学位,省级示范教育资源,举步可达。
【中学】:一路之隔省级示范高中清华附中秦汉学校,师资雄厚,文化氛围浓厚。
医疗:空军军医大学秦汉校区(建设中)、陕西省西咸新区人民医院,西安儿童医院经开院区,西安红会国际医院
【公园】近距总面积103万平方米渭河湿地公园、约7628亩大秦文明园(包含秦咸阳城考古遗址公园、咸阳博物院、秦文明广场三大板块)。
声明:本文由入驻焦点开放平台的作者撰写,除焦点官方账号外,观点仅代表作者本人,不代表焦点立场。
西安【万科沣华锦鸣商铺】租赁中心▁开发商直销▁公园美宅▁高绿化▁内部优惠
西安万科沣华锦鸣项目,均价13000元/㎡,精装交付,位于西咸新区,集教育、生态、品牌于一体,预计2024年8月31日交付。
西安国樾府是三环外高端住宅,配套齐全,价格18000元/㎡,主打智能、绿色、改善型住宅,区域首个轻奢健康智慧社区。
西安永晖文檀府售楼处提供详细信息,主打小户型改善房,周边配套完善,绿化率36%,容积率2.5,小区规划典雅,环境优美。
西安绿城江城阅项目位于秦汉新城,占地约38159㎡,总建筑面积10.3万㎡,售楼处电话,配备多套户型,绿化率35%,容积率1.95,周边配套完善。
西安商铺热销-中粮悦著云朗建面约100-143㎡品牌房企五证齐全地铁沿线
西安中粮悦著云朗售楼处提供100-143㎡户型,主打轻奢平层与先锋主义生活理念,周边配套齐全,临近地铁及生态景观。
郑重提示:本网站作为房产信息聚合类导航网站,仅为方便广大用户掌握信息而提供一站式无偿浏览、查阅的功能,本站楼盘信息并非广告,最终请以政府部门登记备案及开发商公布为准。错误信息举报电话,邮箱 或点此进行意见反馈,也可点此进行举报投诉。


